PRETEND IT'S A CITY
Overvecht, Utrecht, The Netherlands
Academic Project (2021), TU Delft
MSc2 Urban Architecture, supervised by Elsbeth Ronner, Eireen Schreurs, Leeke Reinders
In collaboration with Aneesh Nandi
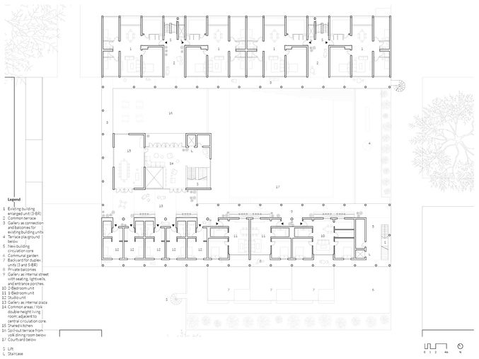
Overvecht is a post-war modernist neighbourhood, indistinguishable from hundreds of others built in the Netherlands in the 1950s-1960s. These habitats are the physical manifestation of a utopian vision meant to provide an alternative to the dense, polluted cities of the industrial era; yet, from a contemporary perspective, it is broadly agreed that they form non-urban environments, which favour vehicular movement over pedestrian, isolate functions by means of zoning, and display repetitive and rigid urban and architectural expression in all scales.
The project strives to describe and enhance local forms of post-war modernist urbanity by identifying traces of urban behaviours in a non-urban context. Building on existing physical and social conditions on site, we see Overvecht as a hopeful starting point for creating a lively, inclusive and diverse living environment.


















